- Startpagina
- —
- Finestrat
- —
- 4 Slaapkamers Huis in Finestrat
4 Slaapkamers Huis in Finestrat
€ 1,500,000
Finestrat, Alicante, Spain
- Villas
- Nieuw
Delen op sociale media:
Voorbeeld
Villas
Type eigendom
4
Slaapkamer
5
Badkamer
R45869
Ref van het pand
Beschrijving
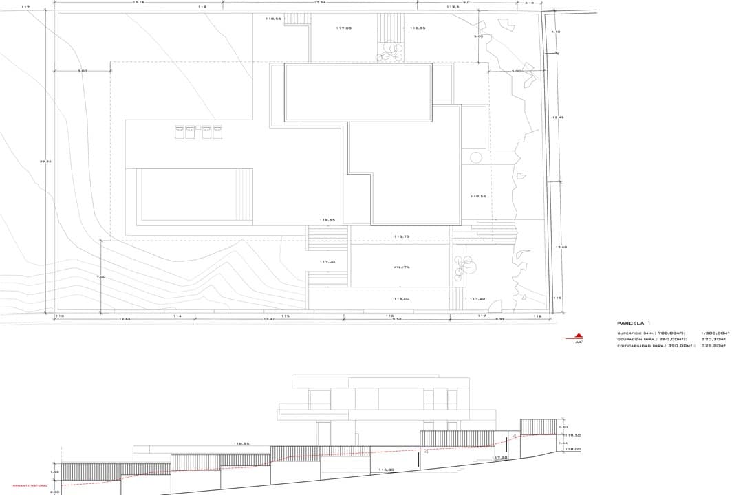
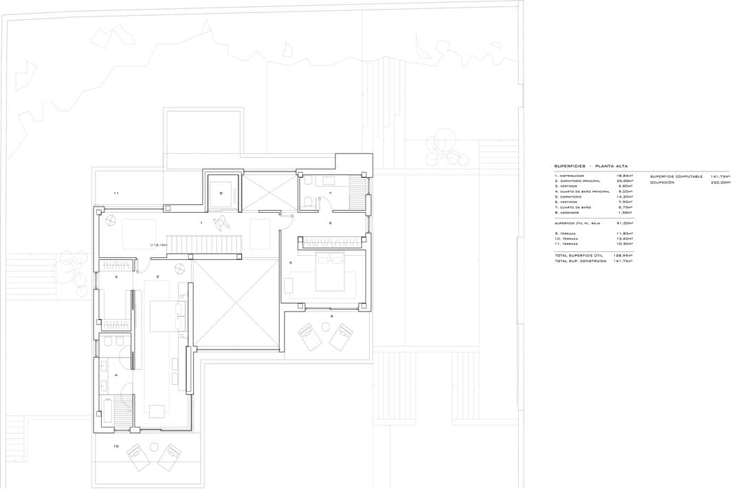
New development in Sierra Cortina, Finestrat, consisting in 5 Luxury detached villas with an ideal location to enjoy the fantastic views of Benidorm and Mediterranean Sea. The houses have a total area of 325 sqm distributed in two levels plus a 180 sqm basement that comprises a garage with space for 3/4 cars, bathroom, hall, storage room and laundry room. The house comprises a large living/dining room with an open plan kitchen and double hight ceiling, 2 bedrooms with 2 en-suite bathrooms and walk in wardrobes on the ground level; the top floor boasts an impressive master bedroom with walk in wardrobe and en-suite bathroom with jacuzzi and access to a large terrace with open views and an extra bedroom also with en-suite bathroom, walk in wardrobe and terrace.
Built on plots starting at 1102 sqm with landscaped garden, off road parking space and infinity swimming pool.
The properties can be totally customized and are built with top quality materials. Included with all properties is a lift, ducted air conditioning, white goods in kitchen, heated floors throughout the property, domotic system, electric blinds and LED lighting.
In addition to the exceptional ambiance of the Costa Blanca, Sierra Cortina presents itself as a luxury residential urbanization, where one can enjoy the wide variet of options for leisure and sports in an environment, suitable for relaxation.
Located between the sea and the mountains, on top of the Cala de Finestrat, with all the amenities close, such as shopping centres, luxury hotels, Terra Mitica amusement park and well connected to Benidorm. Also surrounded by three golf courses and close to various sandy beaches.
Adres
Finestrat
Stad
Alicante
Provincie
Spanje
Land
Geïnteresseerd in deze woning?
Vul onderstaand formulier in om contact met ons op te nemen en meer informatie te ontvangen.